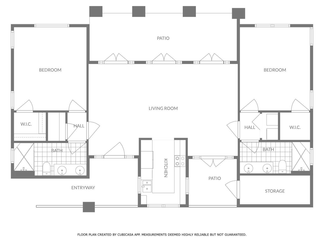
Description
Discover the perfect blend of comfort and nature in this charming 2-bedroom, 2-bathroom condo, located in the sought-after Saman Villas at Carambola community. Nestled within a lush golf course setting, this property offers a serene lifestyle with multiple pools, a tennis court, historic ruins, and an upcoming on-site restaurant/bar--all with the peace of mind provided by 24/7 security.Key Features of the Condo:Air conditioning in both bedrooms.Updated bathrooms and kitchen with sleek granite countertops.The community features a generator for consistent water supply and reverse osmosis, with the option for owners to install solar panels.For more details about the Saman Villas and Carambola community, visit:www.carambolacpoa.comwww.samanvillasatcarambola.com
-
2BEDS
-
N/AACRES
-
2BATHS
-
01/2 BATHS
-
1,350SQFT
-
$0$/SQFT
School Ratings & Info
Description
Discover the perfect blend of comfort and nature in this charming 2-bedroom, 2-bathroom condo, located in the sought-after Saman Villas at Carambola community. Nestled within a lush golf course setting, this property offers a serene lifestyle with multiple pools, a tennis court, historic ruins, and an upcoming on-site restaurant/bar--all with the peace of mind provided by 24/7 security.Key Features of the Condo:Air conditioning in both bedrooms.Updated bathrooms and kitchen with sleek granite countertops.The community features a generator for consistent water supply and reverse osmosis, with the option for owners to install solar panels.For more details about the Saman Villas and Carambola community, visit:www.carambolacpoa.comwww.samanvillasatcarambola.com
Related Properties
© 2026 St. Thomas Board of Realtors Multiple Listing Service & St. Croix Board of Realtors Multiple Listing Service. All rights reserved. IDX information is provided exclusively for consumers' personal, non-commercial use and may not be used for any purpose other than to identify prospective properties consumers may be interested in purchasing. Information displayed on this website for listings other than those of the website owner are displayed with permission of the St. Thomas Board of Realtors Multiple Listing Service (MLS). Real estate listings held by brokerage firms other than the owner of this website are marked with the words “Broker Reciprocity" or logo. This website may not display the entire St. Thomas Board of Realtors MLS active database, as some owner(s) of records may not have given permission for their listings to be displayed. Information is from sources deemed reliable but is not guaranteed. Prospective buyers should verify information independently. Data last updated: 2026-01-17T23:15:35.95.
